home
about redwing
current
portfolio
past
development
client list
contact us
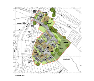
Camp Hill
Nuneaton
2 acre site with planning consent for 45 residential units
Redwing Group Ltd
Victoria House / Victoria Road / Farnborough / Hants / GU14 7PG / England
Registered in England and Wales. Registration No. 2256589.